Terreni edificabili in vendita 1680 m², Torreglia, località __

Veneto Padova Torreglia __ Rif. TovB150
+

TORREGLIA TERRENO EDIFICABILE X VILLA SINGOLA

Prezzo
€ 150.000
Contratto
Vendita
Tipologia
Terreni edificabili
Destinazione
Residenziale
Regione
Veneto
Provincia
Padova
Comune
Torreglia
Località
__
Superficie
1680 m²
Area Edificabile
836 m²

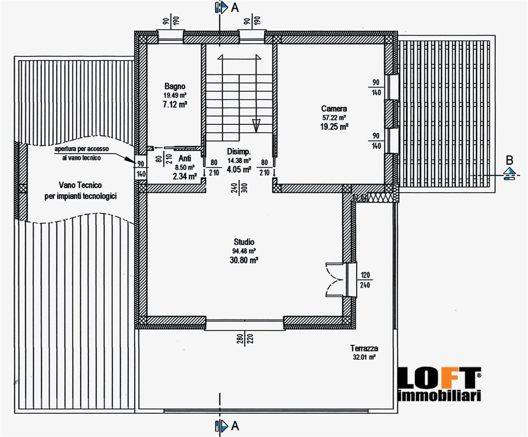
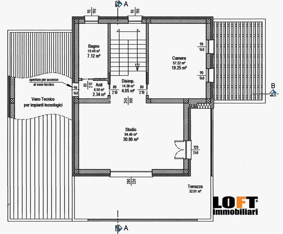
A Torreglia, in tranquillo contesto residenziale circondato dal verde dei Colli Euganei proponiamo in vendita IN ESCLUSIVA questo interessante lotto di terreno edificabile per la costruzione di una villetta unifamiliare. La superficie del lotto è di circa 1680 MQ, di cui circa la metà ricadente in area edificabile e l'altra destinata a verde. E' stato eseguito uno studio di progetto per la realizzazione di una villetta singola su due piani così composta: al piano terra zona LIVING di circa 45 MQ con affaccio su PORTICO di 40 MQ, disimpegno con 1 CAMERA MATRIMONIALE con BAGNO, RIP.-LAVANDERIA, comodo GARAGE con POMPEIANA antistante; al piano primo altre 2 GRANDISSIME CAMERE MATRIMONIALI (30 MQ e 20 MQ) con altro BAGNO e grande TERRAZZA. Il progetto non é ancora stato presentato presso il Comune ma é già stato approvato dal Parco Colli, quindi i tempi di ultimazione dell'iter sarebbero relativamente brevi. Per ogni ulteriore approfondimento saremo lieti di incontrarvi presso il nostro ufficio.

Classe Energetica: N.C.

Caratteristiche

Foto

TORREGLIA  TERRENO  EDIFICABILE  X  VILLA SINGOLA - 1
TORREGLIA  TERRENO  EDIFICABILE  X  VILLA SINGOLA - 2
TORREGLIA  TERRENO  EDIFICABILE  X  VILLA SINGOLA - 3
TORREGLIA  TERRENO  EDIFICABILE  X  VILLA SINGOLA - 4
TORREGLIA  TERRENO  EDIFICABILE  X  VILLA SINGOLA - 5
TORREGLIA  TERRENO  EDIFICABILE  X  VILLA SINGOLA - 6
TORREGLIA  TERRENO  EDIFICABILE  X  VILLA SINGOLA - 7
TORREGLIA  TERRENO  EDIFICABILE  X  VILLA SINGOLA - 8
TORREGLIA  TERRENO  EDIFICABILE  X  VILLA SINGOLA - 9

Planimetrie

TORREGLIA  TERRENO  EDIFICABILE  X  VILLA SINGOLA - 1
TORREGLIA  TERRENO  EDIFICABILE  X  VILLA SINGOLA - 2
TORREGLIA  TERRENO  EDIFICABILE  X  VILLA SINGOLA - 3
TORREGLIA  TERRENO  EDIFICABILE  X  VILLA SINGOLA - 4
TORREGLIA  TERRENO  EDIFICABILE  X  VILLA SINGOLA - 5
TORREGLIA  TERRENO  EDIFICABILE  X  VILLA SINGOLA - 6
TORREGLIA  TERRENO  EDIFICABILE  X  VILLA SINGOLA - 7
TORREGLIA  TERRENO  EDIFICABILE  X  VILLA SINGOLA - 8
TORREGLIA  TERRENO  EDIFICABILE  X  VILLA SINGOLA - 9

Mappa